Коаста проект дома. А-строй

Коаста

Коаста

Коаста

Коаста

Коаста
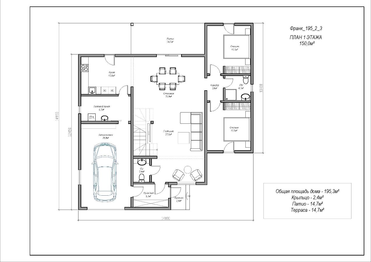
Комфортабельный и компактный дом, в современном европейском стиле, где гармонично сочетаются и классические элементы (в двухэтажной части дома) и современная архитектура, с практически плоскими крышами. Двухэтажный дом, площадью 195 м2, предназначен для большой семьи, имеет 3 спальни и гараж.
Устройство первого этажа оптимально для эксплуатации любой семьи, как на выходные дни, так и для постоянного проживания. Гостиная, столовая, и кухня, не смотря на объединенную архитектуру зонируются или расположением /кухня удалена от зон спален и гостиной/, или элементами архитектуры /лестница объемно разграничивает зону отдыха и столовой/. Гараж, имеющий выход как в холл дома, так и в тепловой узел, удобен для хозяина. А в тепловом узле, с учетом его выхода в зону кухне, предусмотрительно спроектирована постирочная зона. Спальни первого этажа, две, интересное решение для семьи с детьми. Спальни выходят в маленький холл, с обособленным сан узлом.
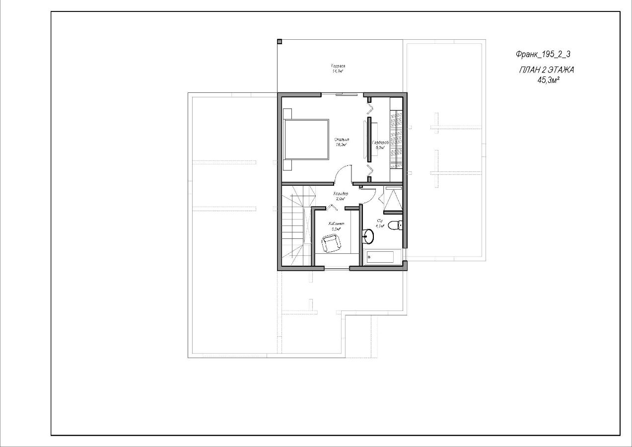
Второй этаж полностью отдан хозяевам дома. Там расположены спальня, просторный гардероб, сан узел с душевой кабиной и ванной, и кабинет для работы.
В зависимости от размещения дома на участке зону гостиной можно «расширить» просторными панорамными окнами, на примыкающую к дому террасу. Аналогично можно обустроить панорамные окна в детских, с широкими подоконниками, на которых так уютно сидеть и болтать с друзьями по телефону.


ДАВАЙТЕ НАЧНЕМ НОВЫЙ ПРОЕКТ.
Мы воплощаем в жизнь мечту: Ваш комфортный и уютный дом.
Our contacts
ТК ЭлитСтрой. Торговая улица, с2, рабочий посёлок Заречье, Одинцовский городской округ, Московская область, Россия, 143085
CRM-форма появится здесь